
Projet d'eau potable et d'irrigation
OBJECTIF GLOBAL
Améliorer durablement les conditions de vie dans des régions rurales et périurbaines en Haïti
OBJECTIF SPÉCIFIQUE DU PROJET
Améliorer durablement l’accès à l’eau à usage domestique et à l’eau à usage agricole dans 3 sections communales de la commune de Carrefour en Haïti, et stabiliser la situation socio-économique d’environ 20.000 bénéficiaires directs et indirects dans cette même zone
RÉSUMÉ
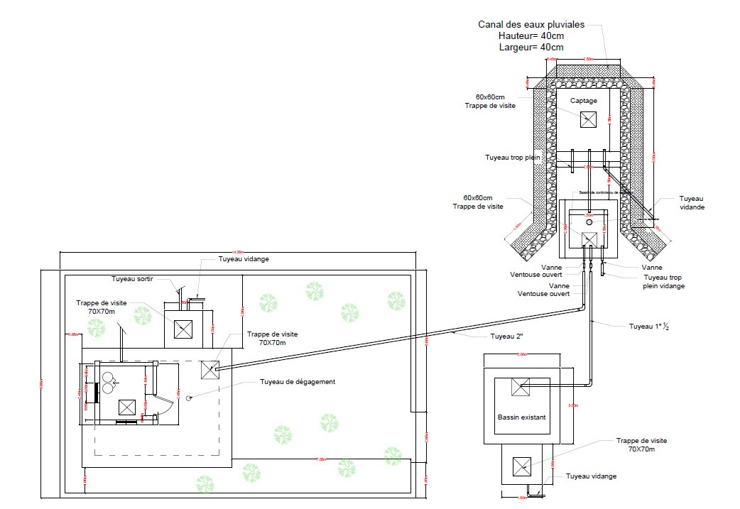
Face à un manque dramatique en eau potable et en eau d'irrigation OTM a conçu avec ses partenaires en Haïti un grand projet d'eau de 3 ans qui a été accepté par le Ministère des Affaires Etrangères au début de 2024. Il comporte deux systèmes importants d'approvisionnement en eau potable en région péri-urbaine et un système d'eau agricole dans une région rurale.
Le 1er mai 2024, OTM a lancé officiellement ce projet visant à améliorer l'accès à l'eau à usage domestique et à usage agricole au sein de cinq sections de Carrefour. Dans ces zones, la population rurale ne dispose pas d'infrastructures adéquates ou d'eau propre, ce qui expose les familles à des maladies comme le choléra. Par ailleurs, les femmes et filles chargées des tâches ménagères parcourent de longues distances à pied pour aller chercher de l'eau. La pénurie d'eau à usage agricole menace la sécurité alimentaire et les revenus des ménages et restreint en outre l'accès à l'éducation et les perspectives d'avenir des garçons et des hommes travaillant dans le secteur agricole.
Par conséquent, dans le cadre du projet présent, il est prévu de mettre en place et/ ou d’améliorer des systèmes de captage, d’adduction, de stockage et de distribution d’eau à Dufresnay et à Thor (Bois Dioute), en région péri-urbaine, très peuplée suite à l'exode rural des derniers temps. Afin d'approvisionner notamment les populations plus en hauteur, l'adduction de l'eau potable comportera aussi un pompage en hauteur, utilisant l'énergie solaire. Pour améliorer l'accès à l'eau à usage agricole, il est prévu de retenir et de distribuer de l'eau par moyen d'un micro-retenu à Procy, une région rurale écartée. Pour les deux types de systèmes, des équipes de gestion au niveau des communautés concernées seront établies. Ces équipes de gestion vont élaborer et assurer la mise en œuvre de plans de gestion des systèmes d'accès à l'eau, y inclus de plans de maintenance, de plans pour la distribution de l’eau, et de plans pour l'auto-financement des infrastructures. Le projet veillera à inclure des femmes dans les équipes de gestion des infrastructures, à promouvoir leur participation active au sein de ces groupes et à assurer ainsi une certaine égalité des genres. Toutes les équipes seront responsabilisées, renforcées et accompagnées, notamment par des experts de l’Université de Fondwa, tout au long du présent projet.
Le projet a été conçu en étroite collaboration avec les partenaires du projet et bénéficie du soutien financier du Ministère des Affaires étrangères et européennes, de la Défense, de la Coopération et du Commerce extérieur au Luxembourg (MAE), de la Ville de Luxembourg et du Lions Club Mameranus.
Photos
PROGRÈS
Mise à jour le 16.7.2025
Après la recherche d'experts techniques locaux bien expérimentés l'entreprise de construction locale MEC (Mutation Entreprise Construction) a réalisé une conception détaillée et établi les plans et documents de construction pour tous les éléments du projet.
Les travaux de réalisation sur le terrain ont commencé depuis avril 2025, et depuis lors un 1er réservoir de 30 m3 et le bassin de sédimentation ont été construits à Dufresnay et le captage de la source est en train d'être remis en état. A Bois Dioute les matériaux sont sur place aussi déjà et les constructions pourront y commencer sous peu.
-
Commune de Carrefour, Sud-Ouest de Port-au-Prince :
-
- Eau potable: Bois Dioute et Dufresnay
-
- Eau agricole: Procy
-
Partenaire(s) local / locaux:
Organisation des Paysans de Carrefour pour le Développement (OPCD)
Association pour l’Avancement de Dufresney (APAD)
Université de Fondwa (UNIF)
Entreprise de Prestation de Services et Multi-services (EPSA-M) -
1er mai 2024 - 30 avril 2027
-
Bénéficiaires du Projet:Environ 20.120 personnes bénéficiaires directs et indirects
-
363.173 EUR (80 % cofinancé par le MAEE)